COMPRE A SUA CASA PRÉ-FABRICADA EM FÔRMAS DE CONCRETO DIRETO DA FÁBRICA
menu--v1
search--v1
italy-circular
Projeto modelo com 1 dormitório(s), com opções personalizáveis de 1 até 2 dormitórios.
Veja nosso 3D: (Disponível para VR)
VENEZA
Realize o Sonho da Casa Própria! Pagamento no Cartão de Crédito Até 20x Sem Juros
Área: 66,15m²
Descrição: Compacta e moderna, ideal para solteiros ou casais jovens. Inclui isolamento térmico e acústico de alto desempenho, garantindo conforto em qualquer estação.

informações Gerais
Visão Geral da Propriedade:
Suítes: 1
Banheiros: 1
Vagas de Garagem: 1
Churrasqueira: Não
Piscina: Não

Características Especiais:
Integração de Ambientes: Ambientes bem aproveitados, promovendo praticidade no dia a dia. Sustentabilidade: Construída com materiais de baixo impacto ambiental, contribuindo para um futuro mais verde. Acabamentos Modernos: Estilo minimalista que combina funcionalidade e beleza. Ideal para quem busca uma solução acessível e confortável sem abrir mão de qualidade e design.
Projeto modelo com 1 dormitório(s), com opções personalizáveis de 1 até 2 dormitórios.
Área do Lote
Área(m²)
66,15
Largura x Fundo(m)
8X6
Lote Mínimo(m)
18X10
Visão Geral da Propriedade
Suítes
1
Banheiros
1
Garagem
1
Churrasqueira
Não
Piscina
Não
Veja nosso 3D: (Disponível para VR)
Veja nosso 3D: (Disponível para VR)
VENEZA
Realize o Sonho da Casa Própria! Pagamento no Cartão de Crédito Até 20x Sem Juros
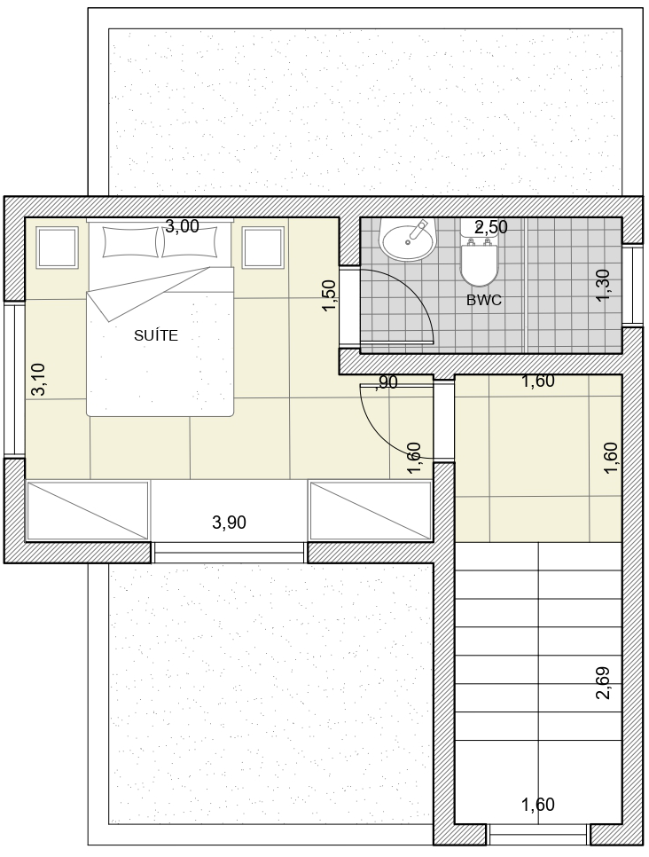
Área: 85,10m²
Descrição: Compacta e moderna, ideal para solteiros ou casais jovens. Inclui isolamento térmico e acústico de alto desempenho, garantindo conforto em qualquer estação.

informações Gerais
Visão Geral da Propriedade:
Suítes: 2
Banheiros: 2
Vagas de Garagem: 1
Churrasqueira: Não
Piscina: Não

Características Especiais:
Integração de Ambientes: Ambientes bem aproveitados, promovendo praticidade no dia a dia. Sustentabilidade: Construída com materiais de baixo impacto ambiental, contribuindo para um futuro mais verde. Acabamentos Modernos: Estilo minimalista que combina funcionalidade e beleza. Ideal para quem busca uma solução acessível e confortável sem abrir mão de qualidade e design.
Projeto modelo com 2 dormitório(s), com opções personalizáveis para até 2 dormitórios.
Área do Lote
Área(m²)
85,10
Largura x Fundo(m)
8X6
Lote Mínimo(m)
18X10
Visão Geral da Propriedade
Suítes
2
Banheiros
2
Garagem
1
Churrasqueira
Não
Piscina
Não
DIFERENCIAIS TÉCNICOS
DAS CASAS ISOPWALL:
REALIZE O SONHO DA CASA PRÓPRIA!
Pagamento no Cartão de Crédito
Até 20x Sem Juros
1.
Eficiência e
Rapidez na Construção
Montagem até 70% mais rápida que métodos tradicionais. Redução de custos com mão de obra e desperdício.
2.
Isolamento Térmico e Acústico
Conforto acústico 40% superior. Excelente isolamento térmico, reduzindo consumo energético.
3.
Durabilidade e Segurança
Estruturas reforçadas com aço, atendendo à norma ABNT NBR 16055-2012 , com alta resistência a impactos e condições climáticas adversas.
4.
Flexibilidade no Design
Opções personalizáveis para atender diferentes estilos e necessidades.
5.
Sustentabilidade
Materiais recicláveis e redução da pegada de carbono. Construção alinhada com práticas de desenvolvimento sustentável.
6.
Custo-Benefício
Redução de tempo e custos totais do projeto. Alternativa econômica e eficiente para construtores e compradores



VISITE NOSSA INDÚSTRIA
Av. Tiradentes, 2700 - Parque Industrial, Itu - SP
13309-640


FALE COM UM DE NOSSOS CONSULTORES
whatsapp--v1 (11)4003-4979
(11)5043-6253
new-post--v1 comercial@isopwall.com.br


PREÇOS DE FÁBRICA 

ENTREGA PRÓPRIA 

ATENDIMENTO HUMANIZADO 

PRODUTOS NORMATIZADOS